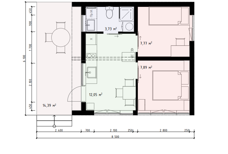
Square of Harmony 54 – вражаючий одноповерховий модульний сучасний будинок. Будинок має велику кількість скляних поверхонь, що створюють враження відкритості та споріднення з навколишнім середовищем.
Фасад будівлі є сучасним та мінімалістичним, з чітко виразними лініями та геометричними формами. Будинок обладнаний сучасними технологіями, що сприяють збереженню енергії, такими як енергоефективні вікна і системи опалення.
Максимальне поєднання найменших інвестицій в житло з комфортом заміського будинку. Завдяки модульній технології цей будинок створює перспективу розширення будинку в майбутньому.



Наші інші будинки
Ознайомтесь з технологією Trident
Модульні будинки та будинки з дерев’яним каркасом створюються за допомогою передових технологій та методів виробництва. Ми інтегруємо високі стандарти якості та безпеки.
Читати даліПереваги готових проєктів модульних будинків
Готові модульні проєкти – це будівлі майбутнього, які мають свої відмінності та характеризуються сучасним підходом до реалізації. Секції для цих будинків виготовляються на спеціальних заводах і збираються на вже підготовленій ділянці, можна сказати, що модульний будинок це майже як великий конструктор, за лічені дні. При цьому, зберігається висока якість модулів, тому такий будинок буде довго тішити своїх власників в різній експлуатації. Проект модульного будинку може мати різний характер, а їх призначення впливає на загальну конструкцію. Планування та підбір матеріалів для постійного проживання може суттєво відрізнятися від конструкції тимчасового житла, дачі, офісу, будиночка для відпочинку чи готелю. Для модульних будинків важлива екологічність, тому використовуються натуральні матеріали, які безпечні для здоров’я та навколишнього середовища. Компанія Avotal має великий асортимент, якщо йдеться мова про модульні будинки проекти, вони оцінюють потреби клієнтів та пропонують оптимальні варіанти перед початком виготовлення спеціальних модулів, що за короткий термін перетворюються у готові споруди.






