Family House 59 – це сучасне рішення для комфортного проживання всієї родини. Його архітектурний дизайн та продумане планування відповідають вимогам кожного члена сім’ї, забезпечуючи максимальний затишок та функціональність.
Будинок вирізняється стильним зовнішнім виглядом і привабливим фасадом, оздобленим природними матеріалами, такими як камінь або дерево. Великі панорамні вікна не тільки додають елегантності дизайну, але й пропускають багато природного світла, створюючи приємну атмосферу всередині.
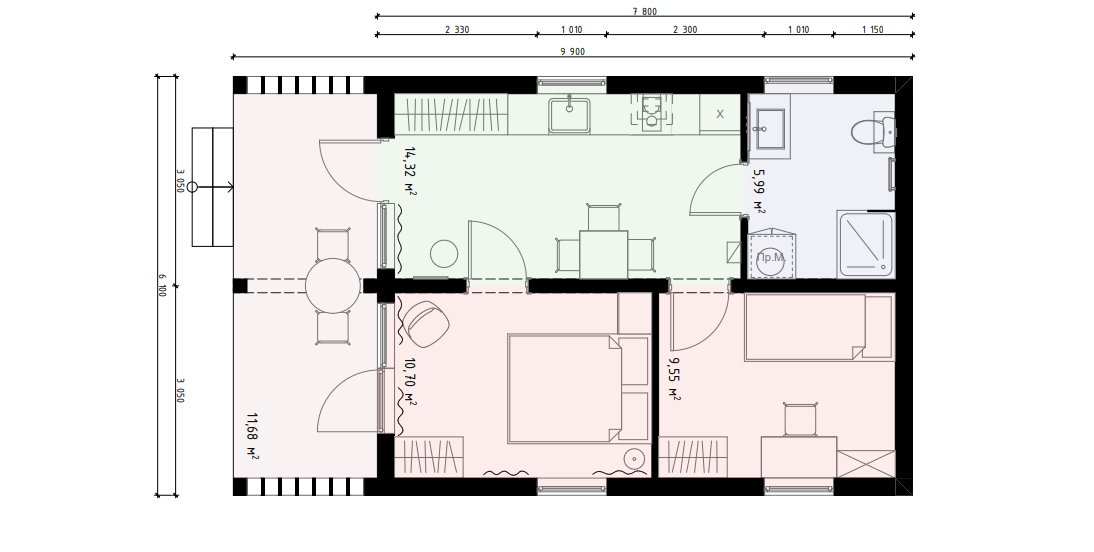
Внутрішній простір будинку розроблено для максимальної зручності, що робить його ідеальним для сімейного життя. Кожен елемент планування орієнтований на комфорт і функціональність, щоб забезпечити вашій родині ідеальні умови для проживання.



Наші інші будинки
Ознайомтесь з технологією Trident
Модульні будинки та будинки з дерев’яним каркасом створюються за допомогою передових технологій та методів виробництва. Ми інтегруємо високі стандарти якості та безпеки.
Читати даліПереваги готових проєктів модульних будинків
Готові модульні проєкти – це будівлі майбутнього, які мають свої відмінності та характеризуються сучасним підходом до реалізації. Секції для цих будинків виготовляються на спеціальних заводах і збираються на вже підготовленій ділянці, можна сказати, що модульний будинок це майже як великий конструктор, за лічені дні. При цьому, зберігається висока якість модулів, тому такий будинок буде довго тішити своїх власників в різній експлуатації. Проект модульного будинку може мати різний характер, а їх призначення впливає на загальну конструкцію. Планування та підбір матеріалів для постійного проживання може суттєво відрізнятися від конструкції тимчасового житла, дачі, офісу, будиночка для відпочинку чи готелю. Для модульних будинків важлива екологічність, тому використовуються натуральні матеріали, які безпечні для здоров’я та навколишнього середовища. Компанія Avotal має великий асортимент, якщо йдеться мова про модульні будинки проекти, вони оцінюють потреби клієнтів та пропонують оптимальні варіанти перед початком виготовлення спеціальних модулів, що за короткий термін перетворюються у готові споруди.





